💡爲(wèi)方便大(dà)家(jiā)了解(jiě)成(chéng)都(dōu)房(fáng)产情况,更方便大(dà)家(jiā)租房(fáng)、买房(fáng)
🏠小编建立了“住(zhù)在成(chéng)都(dōu)”欄(lán)目,将於(yú)每周(zhōu)一(yī)至(zhì)周(zhōu)五(wǔ)晚(wǎn)上9点准时带來(lái)保障房(fáng)、人(rén)才驿站、人(rén)才住(zhù)房(fáng)、长租公(gōng)寓(yù)信息盘点
感兴趣的小伙伴可以每天(tiān)來(lái)看(kàn)看(kàn)哦~
今天(tiān)小编來(lái)给大(dà)家(jiā)介绍
金(jīn)牛区保租房(fáng)项目
——城(chéng)投臻寓(yù)·侯家(jiā)花園(yuán)
一(yī)起來(lái)看(kàn)看(kàn)周(zhōu)边配(pèi)套(tào)、戶(hù)型情况吧
PART
01
项目地(dì)址(zhǐ)
城(chéng)投臻寓(yù)·侯家(jiā)花園(yuán)保障性租赁住(zhù)房(fáng)项目分(fēn)爲(wèi)A、B兩(liǎng)区,分(fēn)别位於(yú)成(chéng)都(dōu)市金(jīn)牛区侯家(jiā)桥二街(jiē)55号、38号
PART
02
周(zhōu)边配(pèi)套(tào)
交通情况:临近地(dì)铁6号线侯家(jiā)桥站
商(shāng)业配(pèi)套(tào):紧鄰(lín)成(chéng)都(dōu)天(tiān)府藝(yì)术公(gōng)園(yuán)、犀浦躰(tǐ)育公(gōng)園(yuán)、成(chéng)都(dōu)欢乐谷等(děng)城(chéng)市绿地(dì);3公(gōng)裡(lǐ)生活圈内,分(fēn)布有(yǒu)爱琴海購(gòu)物中(zhōng)心、成(chéng)都(dōu)欢乐谷商(shāng)业街(jiē)等(děng)商(shāng)业设施。
教育配(pèi)套(tào):项目周(zhōu)边还坐(zuò)落有(yǒu)成(chéng)都(dōu)市全兴小學(xué)、成(chéng)都(dōu)市兴盛(shèng)小學(xué)、成(chéng)都(dōu)七中(zhōng)万達(dá)學(xué)校
医疗配(pèi)套(tào):成(chéng)都(dōu)复兴医院、金(jīn)牛区疾病预防控制中(zhōng)心等(děng)基础教育医疗配(pèi)套(tào)。
PART
03
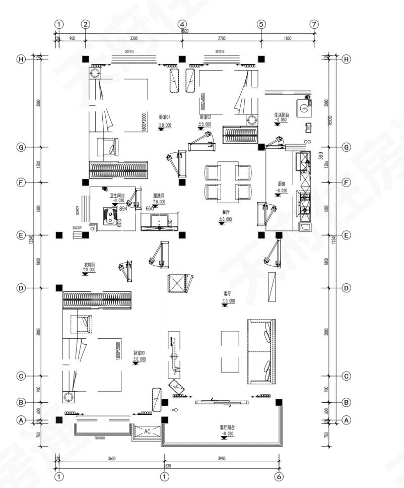
房(fáng)源戶(hù)型
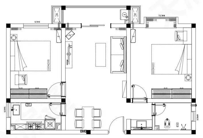
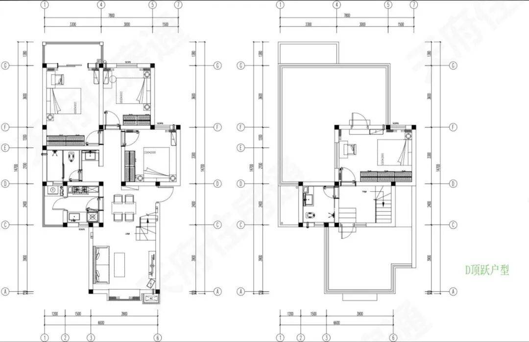
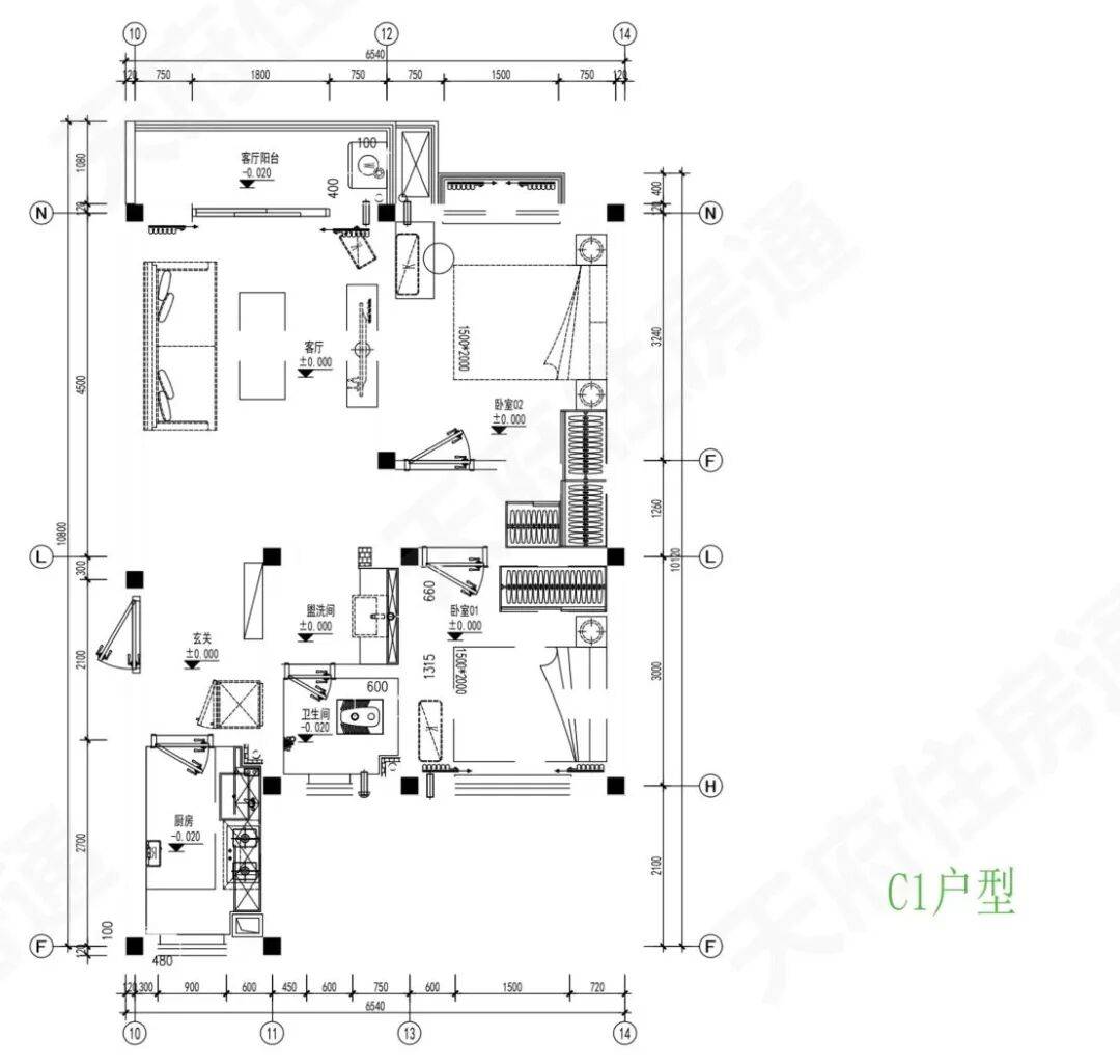
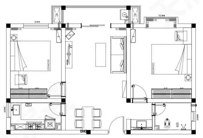
侯家(jiā)花園(yuán)保租房(fáng)爲(wèi)多层步梯,A区共(gòng)分(fēn)爲(wèi)兩(liǎng)批(pī)次分(fēn)别推(tuī)出(chū)過(guò)486套(tào)(間(jiān)),25套(tào)(間(jiān));有(yǒu)套(tào)二、套(tào)三、套(tào)四多種(zhǒng)戶(hù)型。B区共(gòng)分(fēn)爲(wèi)兩(liǎng)批(pī)次分(fēn)别推(tuī)出(chū)過(guò)841套(tào)(間(jiān)),276套(tào)(間(jiān)),有(yǒu)套(tào)一(yī)、套(tào)二、套(tào)三、套(tào)四多種(zhǒng)戶(hù)型,建面约在40㎡-149㎡。套(tào)一(yī)都(dōu)爲(wèi)按(àn)套(tào)整租,部分(fēn)小套(tào)二按(àn)套(tào)整租,套(tào)三、套(tào)四爲(wèi)按(àn)間(jiān)出(chū)租。
侯家(jiā)花園(yuán)A区戶(hù)型圖(tú):
展(zhǎn)开全文
(即(jí)可查看(kàn)大(dà)圖(tú))






圖(tú)源:天(tiān)府住(zhù)房(fáng)通(下同)
侯家(jiā)花園(yuán)B区戶(hù)型圖(tú):
(即(jí)可查看(kàn)大(dà)圖(tú))








推(tuī)荐工具:
《本文》有 0 条评论